Kuressaare Ehitus rajab 2026. aasta kevad/suveks uued kaasaegsed väikelaod, mis paiknevad aadressil Pikk Põik 7, kohe meie kontori kõrval.
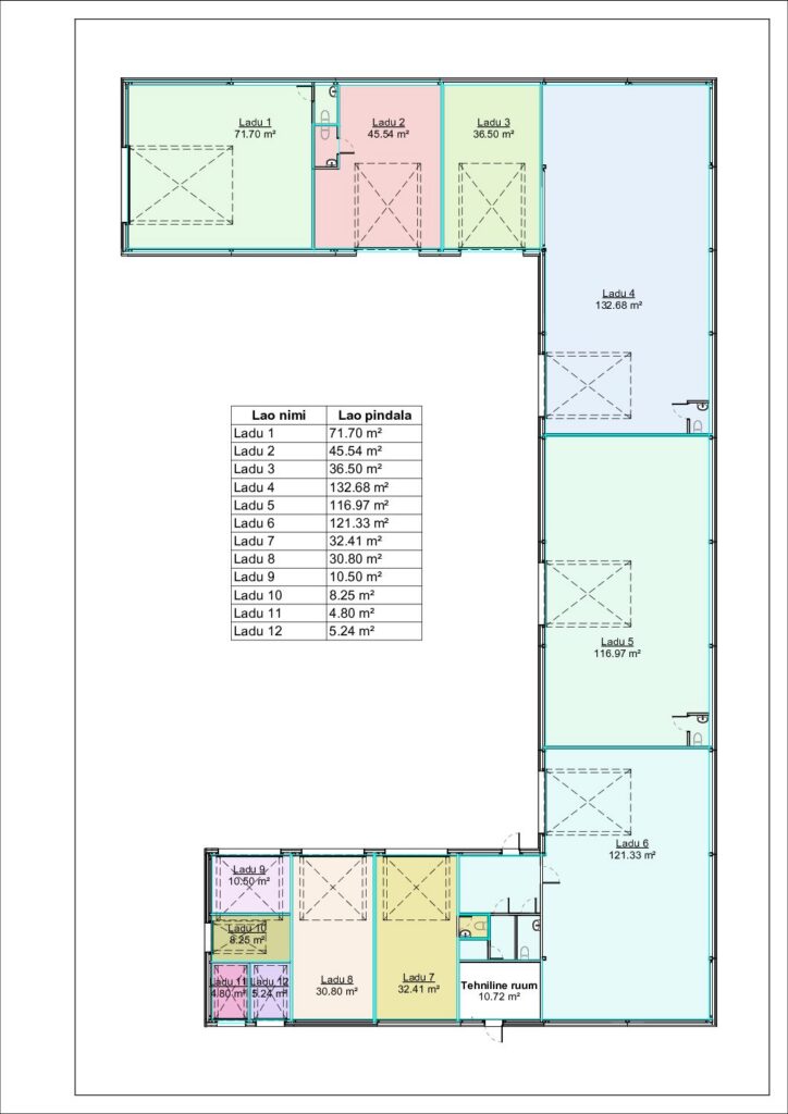
Kokku on planeeritud 12 erisuuruses laoruumi, mille pindalad jäävad vahemikku 5 m² kuni 133 m². Laoruumid on sobilikud nii ettevõtetele kui ka eraisikutele.
Osade ladude juurde kuuluvad ka wc, puhkeruum ja pesemisvõimalused. Kaasaegne planeering, hea ligipääs ja Kuressaare keskne asukoht teevad nendest ladudest praktilise ja turvalise valiku.
Broneeri ladu:
Tõnis Toompuu
Vajuta allpool huvipakkuva laoruumi lingile.
Broneeritud Ladu 1 – 71,70 m² Hind 360 € (+KM ja kõrvalkulud)
Broneeritud Ladu 2 – 45,54 m² Hind 275 € (+KM ja kõrvalkulud)
Broneeritud Ladu 3 – 36,50 m² Hind 220 € (+KM ja kõrvalkulud)
Broneeritud Ladu 4 – 132,68 m² Hind 665 € (+KM ja kõrvalkulud)
Broneeritud Ladu 5 – 116,97 m² Hind 585 € (+KM ja kõrvalkulud)
Broneeritud Ladu 6 – 121,33 m² Hind 610 € (+KM ja kõrvalkulud)
Broneeritud Ladu 7 – 32,41 m² Hind 195 € (+KM ja kõrvalkulud)
Broneeritud Ladu 8 – 30,80 m² Hind 185 € (+KM ja kõrvalkulud)
Broneeritud Ladu 9 – 10,50 m² Hind 84 € (+KM ja kõrvalkulud)
Broneeritud Ladu 10 – 8,25 m² Hind 66 € (+KM ja kõrvalkulud)
Broneeritud Ladu 11 – 4,80 m² Hind 40 € (+KM ja kõrvalkulud)
Broneeritud Ladu 12 – 5,24 m² Hind 42 € (+KM ja kõrvalkulud)